Other For Sale Edinburgh
PROPERTY ID: 146092
PROPERTY TYPE
Other
STATUS
Available
SIZE
8,712 sq.ft
Key Features
Property Details
469 Gorgie Road (A71), Edinburgh is located approximately 2 miles to the west of Edinburgh Centre in an established mixed residential and commercial location. Gorgie benefits from excellent local amenities to include shops, eateries and local services. Gorgie is quite densely populated and therefore benefits from excellent public transport linking the district to the West End, Haymarket and the City Centre to the east with the The City of Edinburgh Bypass and the M8 Motorway just 2.5 miles to the West.
More specifically, 469 Gorgie Road is located close to the junction of Balgreen Road and Hutchison Crossway and is opposite Saughton Park and The Water of Leith Walkway which offers a scenic leafy cycle path / walk to and from the City Centre.
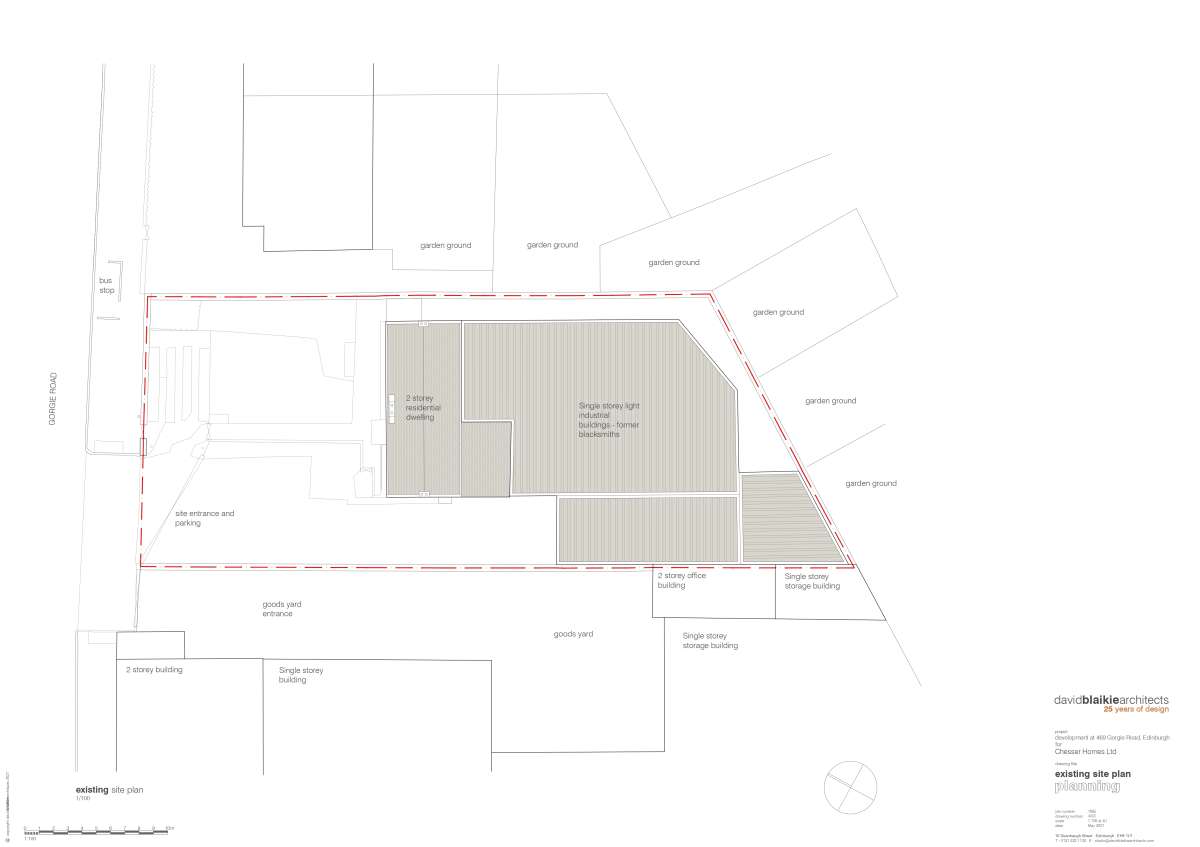
The Site Which Extends To 0.2 Acres Is Broadly Rectangular In Shape And Was Formerly Used As A Blacksmiths Together Private Owner's Accommodation. The Current Owners Have Subsequently Demolished The Previous Buildings (with Completion Certificate) Leaving A Cleared, Ready To Build Residential Development Opportunity. Neighbouring The Site To The East And South Are Established Private Housing Whilst Commercial Uses Accommodate The Building To The West.




















