1/4
Retail/Shop

Retail/Shop To Let Dorchester

PROPERTY ID: 125188

PROPERTY TYPE

Retail/Shop

STATUS

Available

SIZE

1,397 sq.ft

Key Features

Prominent Central Location in Historic County Town
Currently Undergoing Conversion & Refurbishment
Flexible Space over Ground Floor & Basement Levels
Suit Broad Range of Occupiers (subject to requisite consents) Including Retail, Professional Services, Medical & Leisure Uses

Property Details

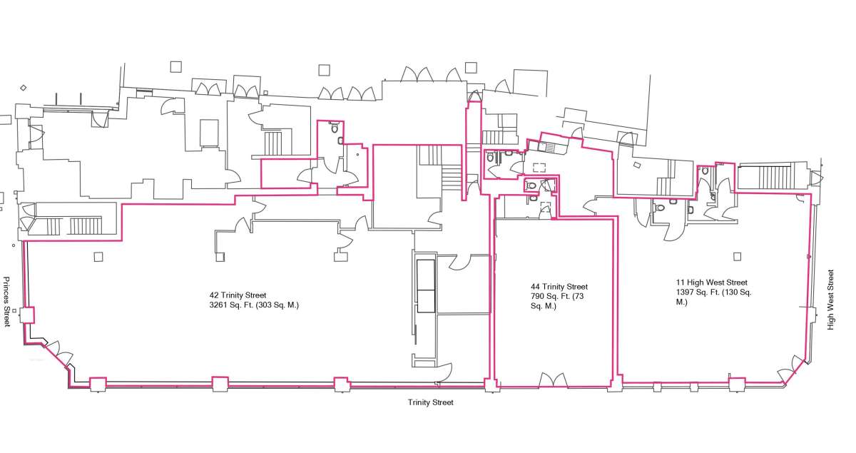
11 High West Street 1397 Sq.Ft (130 Sq.M)
44 Trinity Street 790 Sq.Ft (73 Sq.M)
42 Trinity Street 3,261 Sq,Ft (303 Sq.M)

Ground Floor Total NIA 5,448 Sq.Ft (506)
Basement Total NIA 6,646 Sq,Ft (617)

Description

To Let - 1,397 Sq. Ft. Of Class E Commercial Space With Return Frontage Along High West Street And Trinity Street.

Dorchester Is The County Town Of Dorset And Is Located Approximately 30 Miles West Of Bournemouth, 8 Miles North Of Weymouth And 24 Miles West Of Poole. The A35 Provides Good Road Communications Eastwards To The A31/m27 And Westwards To Exeter. The Town's Mainline Railway Station, Approximately 1 Km From The Property, Provides Services To London Waterloo And Bristol Temple Meads.

Dorchester Has A Population Of 21,366 (2021 Census) And The Town Has A Vibrant Centre With Many National Retailers Trading Alongside Quality Independent Businesses. Recent Years Have Seen Significant Development In Dorchester Including The Dutchy Of Cornwall's Celebrated Poundbury Development And Also Brewery Square, A Mixed-use Development In The Town Centre On The Site Of The Former Eldridge Pope Brewery. This Features A Cinema And A Range Of Hospitality And Retail Businesses.

Princes House Occupies An Excellent And Prominent Trading Location In The Heart Of The Town Fronting High West Street At Its Junction With Trinity Street. The Lower End Of The Property, Formerly Occupied By Argos, Is Also Prominently Situated Fronting Trinity Street At Its Junction With Princes Street.

Princes House Is Currently Undergoing Redevelopment By Our Clients To Provide 35 New Apartments Arranged Over The Upper Floors With Commercial Space Available On The Ground Floor And Basement Levels Including A Goods Lift And Loading Bay Access To Princes Street.

As Part Of The Of Works Currently In Hand, The Ground Floor Is To Undergo A Programme Of Refurbishment. At Present The Ground Floor Comprises Three Commercial Units Although These Can Be Reconfigured In Order To Suit Occupier's Requirements.

The Extensive Basement Area Provides Very Usable Space Having Good Clear Headroom And Can Be Let In Conjunction With All Or Part Of The Ground Floor Or Independently.

Accommodation

11 High West Street 1397 Sq.ft (130 Sq.m)
44 Trinity Street 790 Sq.ft (73 Sq.m)
42 Trinity Street 3,261 Sq,ft (303 Sq.m)

Ground Floor Total Nia 5,448 Sq.ft (506)
Basement Total Nia 6,646 Sq,ft (617)

Planning

Interested Parties Are Advised To Make Their Own Enquiries Of The Local Authority For Confirmation. Under The New Planning Regulations, We Believe The Current Permitted Use To Be Use Class 'e' Which Includes Uses Such As Retail, Professional Services, Café, Health Clinics, Indoor Recreation/sport And Office. All Parties Are Advised To Make Their Own Enquiries Of The Local Authority For Confirmation.

Epc Text

Asset Ratings

11 High West Street D 82
44 Trinity Street - Ordered And Awaiting
42 Trinity Street - Ordered And Awiting

Rating

Rateable Values

11 High West Street £32,500
44 Trinity Street To Be Reassessed
42 Trinity Street £67,000 (current Assessment Incl Basement)
Source Www.voa.org.uk The 2024/2025 Small Business Multiplier Is 0.499 (49.9p Payable Per £1). This Determines What Business Rates Are Payable. All Parties Are Advised To Make Their Own Enquiries For Confirmation. *if You Qualify As A 'small Business' You May Be Eligible For Substantial Relief In Connection With Business Rates Payable. We Advise All Parties Speak To The Local Authority In The First Instance For Confirmation.

Terms

The Premises Are Available By Way Of Effective Full Repairing And Insuring Leases, Term And Rent Review Pattern By Arrangement At The Following Commencing Rents;
11 High West Street: £20,250 Per Annum, Exclusive.
44 Trinity Street: £13,500 Per Annum, Exclusive.
42 Trinity Street: £36,000 Per Annum, Exclusive.

Ground Floor Whole: £67,500 Per Annum, Exclusive
Basement: £22,500 Per Annum, Exclusive

The Rents Will Attract Vat At The Prevailing Rate.

A Service Charge Will Be Levied In Relation To The Landlord's Costs Of Administering Buildings Insurance Together With Maintaining And Repairing The Common Parts. Further Details Available From The Agents.

All Interested Parties Should Be Aware Of The Code Of Leasing Premises 1st Edition, February 2020, For England And Wales, Which Recommends That They Should Seek Professional Advice From Property Professionals Before Agreeing Or Entering Into A Business Tenancy.

About the Agent

Primmer Olds B.A.S

See Agent's Other Properties

Retail Unit

£20,250 / pa
£1,688 / month

Princes House,Princes Street, Dorchester, DT1 1TP
Retail/Shop - Available
1,397 sq ft
130 sqm
Show phone number

Enquiry Form

Boxpod will only use your details to send an enquiry to the advertiser and prompt a response. By clicking the Send Enquiry button, you agree to Boxpod's Privacy Policy Please wait for a response. It may take several seconds.

Similar to this property

To Let
£1125 / month

Dorchester, DT1 1TP

Retail/Shop

To Let
£7500 / month

Dorchester, DT1 1TP

Retail/Shop

To Let
£1875 / month

Dorchester, DT1 1TP

Retail/Shop

To Let
£5625 / month

Dorchester, DT1 1TP

Retail/Shop

To Let
£3000 / month

Dorchester, DT1 1TP

Retail/Shop

To Buy
£59950 Freehold

Dorchester, DT1 1UJ

Retail/Shop

To Let
£958 / month

Dorchester, DT1 1TT

Retail/Shop

To Let
£958 / month

Dorchester, DT1 1TT

Retail/Shop

To Let
£1000 / month

Dorchester, DT1 1TT

Retail/Shop

To Let
£958 / month

Dorchester, DT1 1TT

Retail/Shop

To Let
£1000 / month

Dorchester, DT1 1TT

Retail/Shop

To Let

Dorchester, DT1 1DQ

Retail/Shop

To Let
£1375 / month

Dorchester, DT1 1TT

Retail/Shop

To Let
£2500 / month

Dorchester, DT1 1BS

Retail/Shop

To Let
£5292 / month

Dorchester, DT1 2FB

Retail/Shop

To Buy
£99950 Freehold

Dorchester, DT1 3BL

Retail/Shop

To Buy
£250000 Freehold

Weymouth, DT4 8NY

Retail/Shop

To Let
£995000 Freehold

Weymouth, DT4 8DH

Retail/Shop

To Let
£2083 / month

Weymouth, DT4 8DH

Retail/Shop

To Let
£6250 / month

Weymouth, DT4 8DH

Retail/Shop

To Let
£2083 / month

Weymouth, DT4 8HB

Retail/Shop

To Let
Starting From £2083 / month

Weymouth, DT4 8HB

Retail/Shop

To Let
Starting From £2083 / month

Weymouth, DT4 8HA

Retail/Shop

To Let
£1723 / month

Weymouth, DT4 9TP

Retail/Shop

To Let
Starting From

Weymouth, DT4 8US

Retail/Shop

To Let
Starting From £708 / month

Portland, DT5 1DX

Retail/Shop

To Buy
£595000 Freehold

West Lulworth, BH20 5SG

Retail/Shop

To Let
POA

Portland, DT5 1AL

Retail/Shop

To Let
POA

Blandford Forum, DT11 9EX

Retail/Shop

To Buy
£180000 Freehold

Bridport, DT6 3LF

Retail/Shop

To Let
£2500 / month

Bridport, DT6 3LF

Retail/Shop

To Buy
£575000 Freehold

Bridport, DT6 3QP

Retail/Shop

To Buy
£675000 Freehold

Blandford Forum, DT11 0RF

Retail/Shop

To Buy
£325000 Freehold

Wareham, BH20 4LR

Retail/Shop

To Buy
£375000 Freehold

Blandford Forum, DT11 7AW

Retail/Shop

To Let
£1913 / month

Blandford Forum, DT11 7AL

Retail/Shop

To Let
£5833 / month

Blandford Forum, DT11 9NE

Retail/Shop

To Buy
£350000 Freehold

Blandford Forum, DT11 7BD

Retail/Shop

To Let
£1042 / month

Blandford Forum, DT11 7AH

Retail/Shop

To Let
£3333 / month

Blandford Forum, DT11 7AG

Retail/Shop

To Let
£2917 / month

Blandford Forum, DT11 7AF

Retail/Shop

To Let
£6250 / month

Blandford Forum, DT11 7DX

Retail/Shop

To Let
£1875 / month

Sherborne, DT9 3BG

Retail/Shop

To Let
£1208 / month

Sherborne, DT9 3BG

Retail/Shop

To Buy
POA

Sherborne, DT9 3BA

Retail/Shop

To Let
£1667 / month

Sherborne, DT9 3BB

Retail/Shop

To Let

Sherborne, DT9 3PT

Retail/Shop

To Let
£5000 / month

Yeovil, BA20 1LU

Retail/Shop

To Buy
POA

Yeovil, BA20 1NA

Retail/Shop

To Let
£2667 / month

Yeovil, BA20 1LX

Retail/Shop

To Let
£700 / month

Yeovil, BA20 1PQ

Retail/Shop

To Buy
£165000 Freehold

Yeovil, BA20 1LG

Retail/Shop

To Let
POA

Yeovil, BA20 1EY

Retail/Shop

To Let
£1167 / month

Yeovil, BA20 1HW

Retail/Shop

To Let
£45 / month

Crewkerne, TA18 8AG

Retail/Shop

To Let
£65 / month

Crewkerne, TA18 8AG

Retail/Shop

To Let
£375 / month

Crewkerne, TA18 8AG

Retail/Shop

To Let
£375 / month

Crewkerne, TA18 8AG

Retail/Shop

To Let
£175 / month

Crewkerne, TA18 8AG

Retail/Shop

To Let
£175 / month

Crewkerne, TA18 8AG

Retail/Shop

To Let
£100 / month

Crewkerne, TA18 8AG

Retail/Shop

To Let
£375 / month

Crewkerne, TA18 8AG

Retail/Shop

To Let
£200 / month

Crewkerne, TA18 8AG

Retail/Shop

To Let
£100 / month

Crewkerne, TA18 8AG

Retail/Shop

To Let
£2000 / month

Chard, TA18 7LW

Retail/Shop

To Buy
£375000 Freehold

Cromer, TA18 7JP

Retail/Shop

To Let
£1833 / month

Southampton, BH18 8DX

Retail/Shop

To Let
£500 / month

Poole, BH15 1JT

Retail/Shop

To Let
£2083 / month

Poole, BH15 1BP

Retail/Shop

To Buy
£20000 Freehold

Poole, BH17 7EZ

Retail/Shop

To Buy
£65000 Freehold

Poole, BH15 1AH

Retail/Shop

To Let
£1000 / month

Poole, BH15 1DB

Retail/Shop

To Let
£2083 / month

Poole, BH15 1AN

Retail/Shop

To Buy
£350000 Freehold

Poole, BH15 1DB

Retail/Shop

To Let
£7500 / month

Poole, BH15 1HU

Retail/Shop

To Let
£1333 / month

Wimborne, BH21 1JH

Retail/Shop

To Buy
£35000 Freehold

Wimborne, BH21 1JQ

Retail/Shop

To Let
£7083 / month

Wimborne, BH21 1ED

Retail/Shop

To Buy
£750000 Freehold

Wimborne, BH21 1DU

Retail/Shop

To Buy
£975000 Freehold

Poole, BH15 2SF

Retail/Shop

To Let
£1167 / month

Poole, BH17 8SA

Retail/Shop

To Let
£22500 / month

Poole, BH14 0RG

Retail/Shop

To Let
Starting From £1417 / month

Poole, BH14 0RG

Retail/Shop

To Let
£2500 / month

Shaftesbury, SP7 8JG

Retail/Shop

To Buy
£500000 Freehold

Shaftesbury, SP7 8JG

Retail/Shop

To Let
£750 / month

Gillingham, SP8 4QT

Retail/Shop

To Let
£1250 / month

Gillingham, SP8 4AA

Retail/Shop

To Let
£750 / month

Gillingham, SP8 4AA

Retail/Shop

To Let
£917 / month

Gillingham, SP8 4AA

Retail/Shop

To Let
£1375 / month

Gillingham, SP8 4QL

Retail/Shop

To Buy
£465000 Freehold

Castle Cary, BA7 7ET

Retail/Shop

To Buy
£160000 Freehold

Castle Cary, BA7 7BG

Retail/Shop

To Buy
£159000 Freehold

Somerton, TA11 6QJ

Retail/Shop

To Buy
£460000 Freehold

Somerton, TA11 6QJ

Retail/Shop

To Buy
£185000 Freehold

Somerton, TA11 6NB

Retail/Shop

To Buy
£240000 Freehold

Shepton Mallet, BA4 6EF

Retail/Shop

To Buy
£215000 Freehold

Street, BA16 0EX

Retail/Shop

To Let
£833 / month

Street, BA16 0EY

Retail/Shop

To Buy
£350000 Freehold

Street, BA16 0EW

Retail/Shop

To Buy
£225000 Freehold

Glastonbury, BA6 9DZ

Retail/Shop