Industrial Unit To Let Derby
PROPERTY ID: 147328
PROPERTY TYPE
Industrial Unit
STATUS
Available
SIZE
3,000-7,500 sq.ft
Key Features
Property Details
Description<br>
<br>
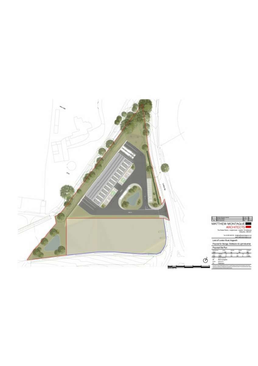
New Site Of Commercial Units. Expressions Of Interest Invited On A Stp Basis. Units Available Together Or Separately, From 3,000 Sq Ft To 7,500 Sq Ft.<br>
<br>
It Is Proposed The Unit Be Constructed To Shell, Ready For Occupier Fit Out. Upon Completion Each Unit Shall Have: Power Floated Concrete Floor, 6m Eaves, Electric Up And Over Loading Door, 10% Natural Roof Lights. <br>
<br>
In A Large Fenced And Gated Site Providing Parking Including 7 Shared Ev Charging Points.<br>
<br>
Vat<br>
<br>
All Figures Are Quoted Exclusive Of Vat, We Are Advised The Property Is Registered For Vat Which Is Applicable At The Prevailing Rate.<br>
<br>
Epc<br>
<br>
The Units Will Be Assessed Upon Practical Completion. It Is Anticipated They Will Achieve An Epc Rating Of At Least A B.<br>
<br>
Viewing<br>
<br>
Please Contact Us Or Visit The Omeeto Website For Full Details. Omeeto Do Not Take Any Responsibility For Any Loss Or Injury Caused Whilst Carrying Out A Site Visit.






























































.jpg)






















































