Industrial Unit To Let Todmorden
PROPERTY ID: 150295
PROPERTY TYPE
Industrial Unit
STATUS
Available
SIZE
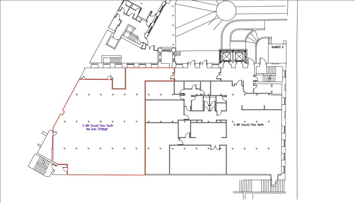
13,246 sq.ft
Key Features
Property Details
The property is located along Burnley Road in the Lydgate area of Todmorden approximately 1½ miles northwest of the town centre. Lydgate is a mixed-use residential and commercial area with the subject premises being located opposite the junctions to Jumps Road and Picker Street.
The Property Briefly Comprises A Two Storey Industrial Unit Situated Along Burnley Road, Todmorden. The Ground Floor Provides A Warehouse With Drive In Access Via A Roller Shutter Door Measuring 4.48m X 6.25m, Concrete Floor And An Additional Roller Shutter Measuring 2.97m X 3.18m To The Rear Of The Property Leading To Small Yard Area. The Unit Has Been Divided With Part Being Used As Retail, Benefitting From Having A Separate Access With Automatic Doors, Led Panel Lights, Staff Kitchen & Wc Facilities And First Floor Offices.
There Is A Substantial Mezzanine Providing Further Stores, Which Can Be Loaded With A Forklift From The Ground Floor Warehouse.
Externally, The Property Benefits From Ample Parking And Yard Area.
Mains Services Connected To The Premises Include Electricity, Water And Drainage. Please Note These Services Have Not Been Tried Or Tested And Any Interested Parties Are Advised To Satisfy Themselves As To Suitability And Condition.














































































































.jpg)



