Office
Office For Sale Fareham
PROPERTY ID: 146653
PROPERTY TYPE
Office
STATUS
Available
SIZE
3,384 sq.ft
Key Features
Guide price £600,000
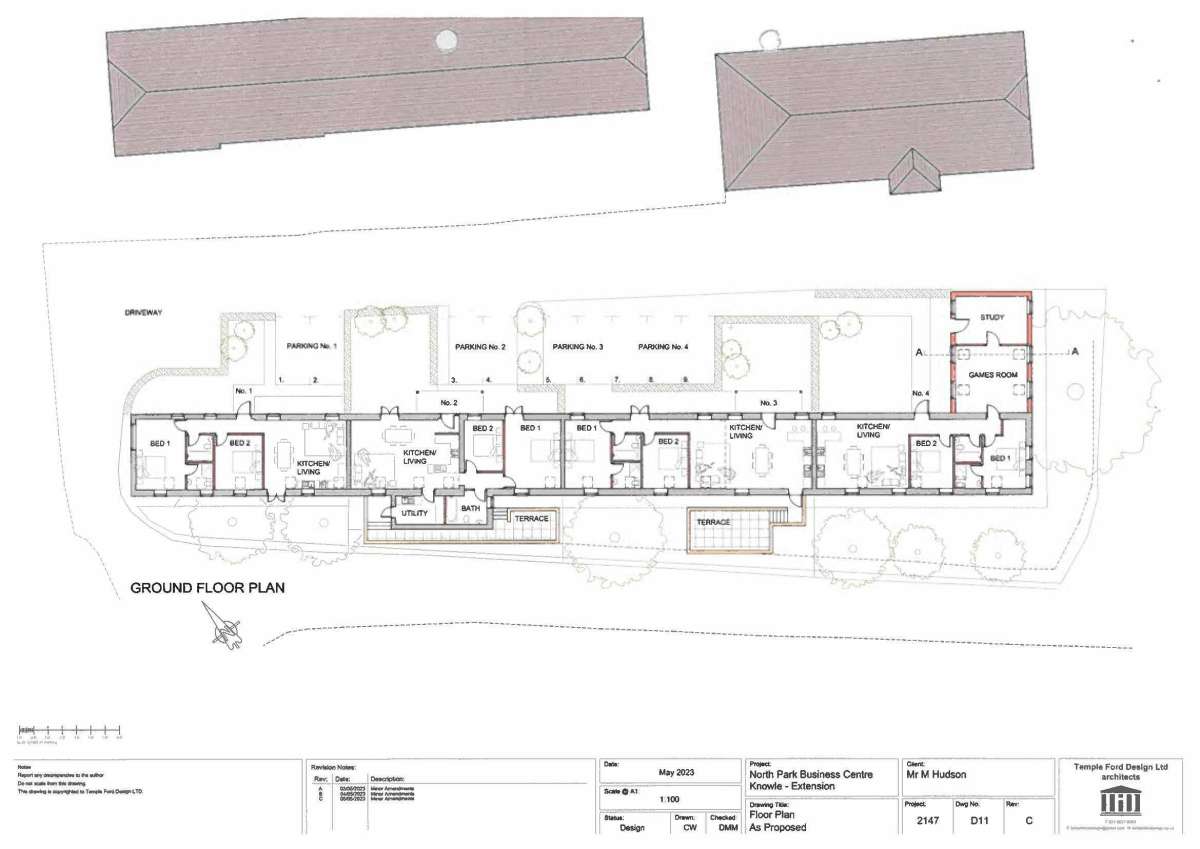
Oven ready development to four dwellings with parking
Attractive setting with good transport links
Conversion Planning Ref - 23/01185/PNRCOU
Extension Planning Ref - 23/01186/FUL
Full plans available on request
Property Details
North Park Began Life As Part Of The Grouped Structures Forming Knowle Farm, Dating Back To 17th Century.
The Property Features Barn-style Single Storey Office Buildings, With 16 Parking Spaces And The Benefit Of Planning Permission For An Extension And Conversion To Four Residential Units. Previously Used As Offices By The Current Owners, The Building Is In Good Condition, Ready For The New Owner To Begin The Conversion Process.
About the Agent
LSH- Fareham
See Agent's Other PropertiesOffice Unit
POA
1 - 4 North Park,Mayles Lane, Fareham, PO17 5LJ
Office -
Available
3,384 sq ft
314 sqm
Show phone number


















































































































