Retail/Shop To Let Middleton
PROPERTY ID: 148678
PROPERTY TYPE
Retail/Shop
STATUS
Available
SIZE
3,577 sq.ft
Key Features
Property Details
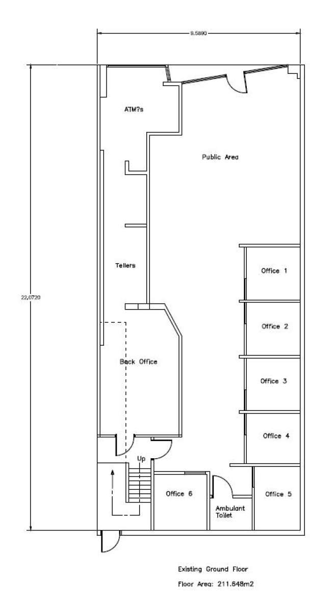
Modern Two Storey Retail Premises Occupied By "halifax" For Some Time. They Extend Over The Ground And First Floor Providing A Total Of 332.20 Sq M (3,577 Sq Ft) Or Thereabouts. Facilities Include An Ambulant Toilet To The Ground Along With Kitchen/staff Room, Ladies And Gents' Toilets To The First Floor.
The Property Benefits From Double Display Windows To Its Frontage Fitted With Security Roller Shutters. Private Car Parking For Up Three Vehicles Is Available To The Rear.
Town Centre Position
Ground Floor - 195.37 Sq M (2,103 Sq Ft)
First Floor - 136.93 Sq M (1,474 Sq Ft)
Within Conservation Area
Between Middleton Shopping Centre & Tesco Extra
Close To Public Transport Links & Car Parks
Private Car Parking To Rear
Vat Is Payable












































































































.jpg)








