Back to results

Industrial Unit For Sale, Peterborough

Industrial Unit in Peterborough
Industrial Unit in Peterborough
Industrial Unit in Peterborough
Industrial Unit in Peterborough

Property ID: 135322

POA

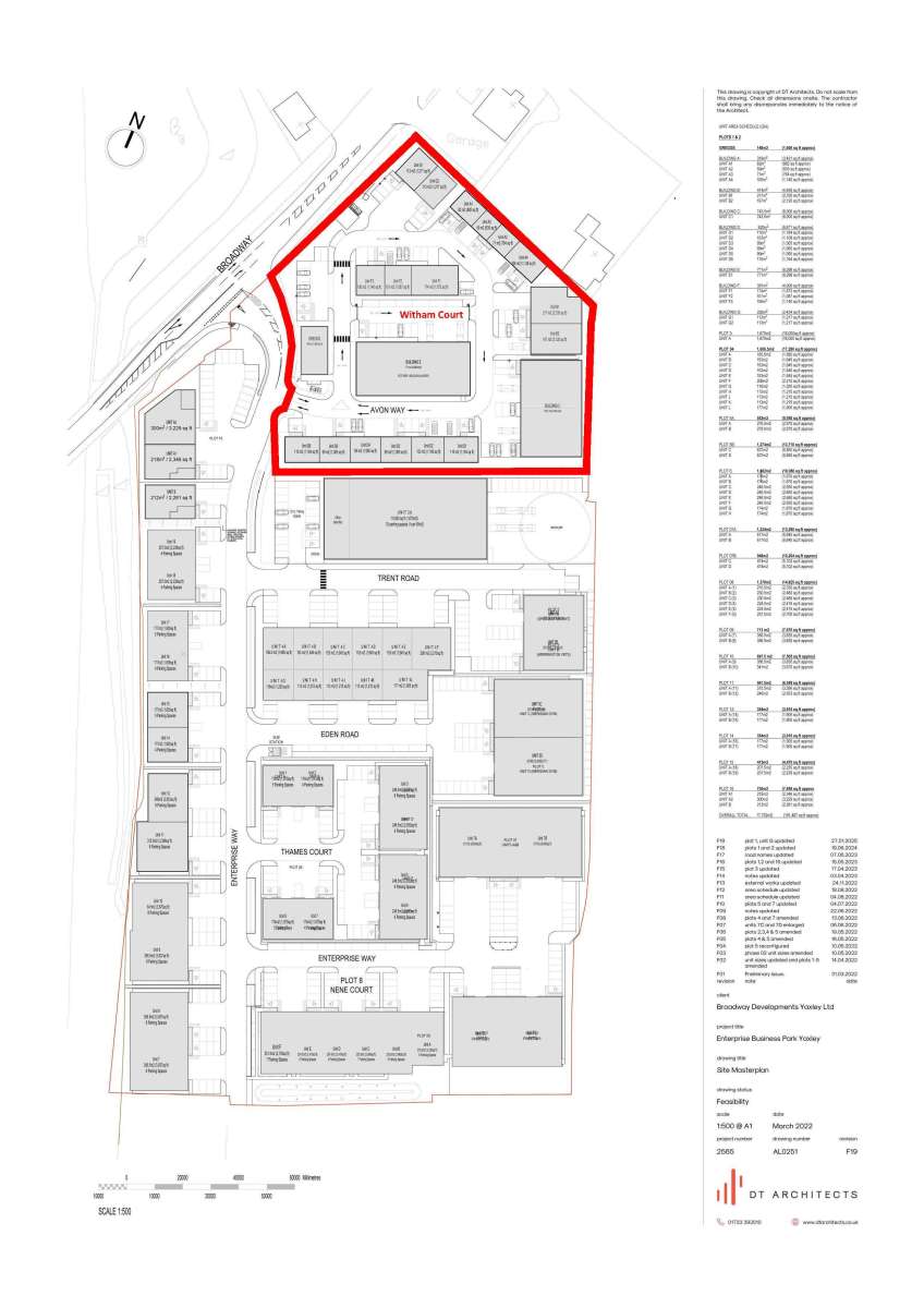
Witham Court, Peterborough, PE7 3WY

Type Industrial Unit
Status Available
Size 635 - 4,000 sq ft

Key Features

  • Located within popular Yaxley Development
  • High Quality Specification
  • Three Phase Power & Full Fibre Connection
  • Available November 2025
  • Units will be available towards the end of 2025.

Property Details

The site has direct access to Broadway and is located 3 miles from J16 of the A1(M) at Norman Cross with access to the Parkway dual carriageway road system around Peterborough which is approximately 2 miles to the northeast.

The site is serviced by a main bus route and is adjacent to the recently developed Eagle Business Park.

A New Industrial / Warehouse Development Situated On Broadway In Yaxley With A Current Total Of 46 Units. Witham Court Is The Final Phase Of The Development At Enterprise Park With Unit Sizes Ranging From 656 - 4,000 Sq Ft. The Units Will Have The Following :-
Steel Portal Frame Construction.
Each Unit Has An Office And Toilet.
Led Lighting.
Electric Loading Doors.
Car Parking.
Fibre Connection.
Available November 2025
Eddisons; Peterborough
Eddisons; Peterborough View all properties

Property ID: 135322

Industrial Unit For Sale, Peterborough
POA

Witham Court, Peterborough, PE7 3WY

Industrial Unit · Available · 635 - 4,000 sq ft

Send Enquiry
Eddisons; Peterborough
Eddisons; Peterborough View all properties

Make an Enquiry

Boxpod will only use your details to send an enquiry to the advertiser and prompt a response. By clicking Send Enquiry, you agree to Boxpod's Privacy Policy.

Make an Enquiry

Eddisons; Peterborough
Eddisons; Peterborough

Boxpod will only use your details to send an enquiry to the advertiser and prompt a response. By clicking Send Enquiry, you agree to Boxpod's Privacy Policy.

Call