Industrial Unit To Let Or For Sale, Exeter
4 photos
£400,000 Freehold
10,Manaton Close, Exeter, EX2 8PF
Type
Industrial Unit
Status
Available
Size
2,403 sq ft
Key Features
- End of terrace hybrid unit with parking
- Gross Internal Area (GIA): 4,806 sq.ft (446.55 sq.m)
- Suitable for a variety of uses, subject to consents
- Available with vacant possession
Property Details
Located on Marlborough Court, a small development of 10 similar units within the well-established Matford Business Park. Exeter is the county town and the major regional shopping centre for the county of Devon with
a population of over 130,000.
End Of Terrace Hybrid Unit With Parking
End Of Terrace Hybrid Unit With Parking
Gross Internal Area (gia): 4,806 Sq.ft (446.55 Sq.m)
Suitable For A Variety Of Uses, Subject To Consents
Available With Vacant Possession
Located On Marlborough Court, A Small Development Of 10 Similar Units Within The Well-established Matford Business Park. Exeter Is The County Town And The Major Regional Shopping Centre For The County Of Devon With
A Population Of Over 130,000.
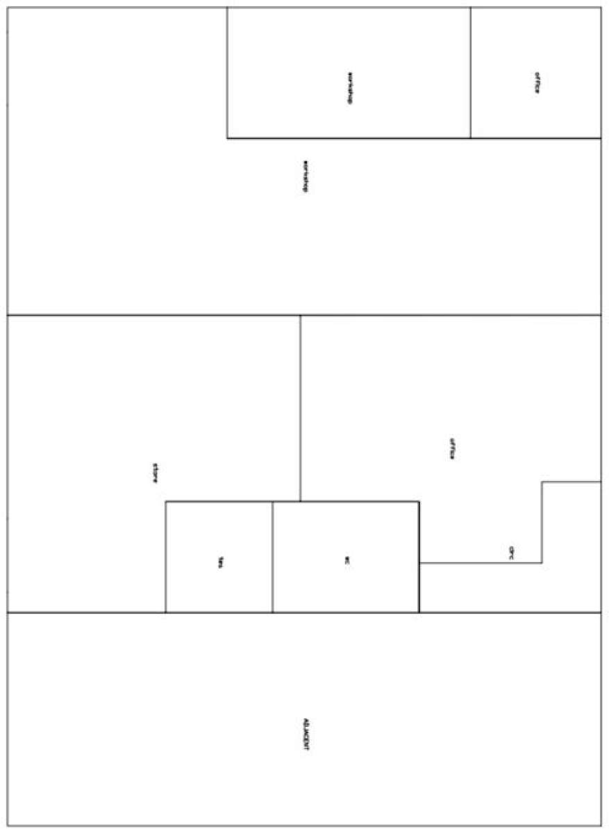
The Property Comprises An End Terraced Late 1980s Hybrid Commercial Double Unit Which Provides Trade Counter And Storage On The Ground Floor And Amalgamated Office/staff Accommodation On The First Floor.
The Front Elevation Incorporates Two Storey Powder Coated
Aluminium Double Glazed Windows And Pedestrian Entrance With External Metal Roller Shutters.
The Property Benefits From 12 Allocated Car Spaces.
Vat Will Be Applied At The Standard Rate Where Applicable.
Both Parties To Bear Their Own Legal Costs In The Transaction.
An Epc Is Available For This Property. Please Contact The Agent For Further Details.
a population of over 130,000.
End Of Terrace Hybrid Unit With Parking
End Of Terrace Hybrid Unit With Parking
Gross Internal Area (gia): 4,806 Sq.ft (446.55 Sq.m)
Suitable For A Variety Of Uses, Subject To Consents
Available With Vacant Possession
Located On Marlborough Court, A Small Development Of 10 Similar Units Within The Well-established Matford Business Park. Exeter Is The County Town And The Major Regional Shopping Centre For The County Of Devon With
A Population Of Over 130,000.
The Property Comprises An End Terraced Late 1980s Hybrid Commercial Double Unit Which Provides Trade Counter And Storage On The Ground Floor And Amalgamated Office/staff Accommodation On The First Floor.
The Front Elevation Incorporates Two Storey Powder Coated
Aluminium Double Glazed Windows And Pedestrian Entrance With External Metal Roller Shutters.
The Property Benefits From 12 Allocated Car Spaces.
Vat Will Be Applied At The Standard Rate Where Applicable.
Both Parties To Bear Their Own Legal Costs In The Transaction.
An Epc Is Available For This Property. Please Contact The Agent For Further Details.
Location
Advertisement
Stratton Creber Commercial - Exeter
View all properties
Make an Enquiry
Stratton Creber Commercial - Exeter