Back to results

Industrial Unit To Let, Bournemouth

Industrial Unit in Bournemouth
Industrial Unit in Bournemouth
Industrial Unit in Bournemouth
Industrial Unit in Bournemouth
£2,208 / month
£26,500 pa

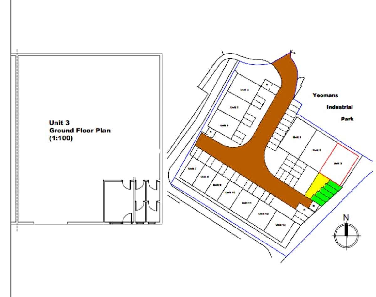
Yeomans Way, Bournemouth, BH8 0BJ

Type Industrial Unit
Status Available
Size 1,875 sq ft

Key Features

  • End terrace industrial/warehouse unit
  • Located on popular industrial park
  • 5 allocated car parking spaces and a loading area
  • Undergoing refurbishment

Property Details

This End Of Terrace Unit Is Of Blockwork Inner, Brickwork Outer Wall Construction With Steel Cladding To The Upper Elevations. There Is A Pitched Steel Clad Roof Incorporating Daylight Panels Supported Upon A Steel Portal Frame And The Internal Eaves Height Is Approximately 5m. Loading Is By Way Of A Roller Shutter Door Measuring Approx. 3m W X 4m H. There Is A Personnel Door Providing Access To An Office/reception Area With Lighting And A Tea Point. There Are W.c And Kitchenette Facilities. 3 Phase Electricity Is Available.

Externally, There Is A Tarmacadam Forecourt Providing 5 Allocated Car Parking Spaces And A Loading Area.
Advertisement
Vail Williams
Vail Williams View all properties
Industrial Unit To Let, Bournemouth
£2,208 / month
£26,500 pa

Yeomans Way, Bournemouth, BH8 0BJ

Industrial Unit · Available · 1,875 sq ft

Property ID: 150519

Send Enquiry
Vail Williams
Vail Williams View all properties
Advertisement

Make an Enquiry

Boxpod will only use your details to send an enquiry to the advertiser and prompt a response. By clicking Send Enquiry, you agree to Boxpod's Privacy Policy.

Make an Enquiry

Vail Williams
Vail Williams

Boxpod will only use your details to send an enquiry to the advertiser and prompt a response. By clicking Send Enquiry, you agree to Boxpod's Privacy Policy.

Call