Office To Let, Nottingham

Office in Nottingham
Office in Nottingham
Office in Nottingham
Office in Nottingham

Property ID: 90585

£625 / month
£7,500 pa

9 Cranbrook Street, Nottingham, NG1 1ER

Type Office
Status Available
Size 320 - 1,020 sq ft

Key Features

  • NIA: 320 - 1,020 sq ft (29.73 - 94.76 sqm)
  • Dedicated car parking for 2 vehicles
  • City centre accommodation within walking distance of Hockley, providing a wealth of independent amenities
  • Available on an inclusive basis as a whole or separately

Property Details

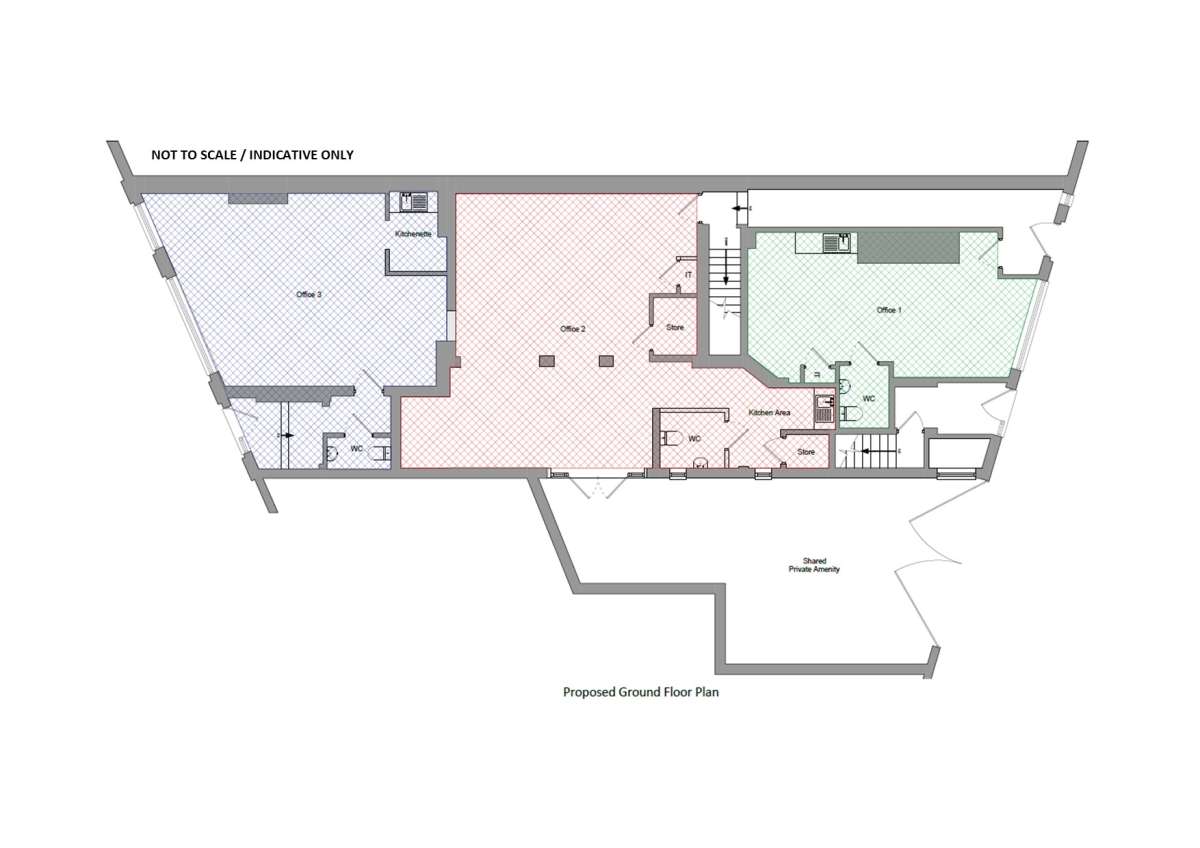
The Property Comprises Of 2 Offices Which Can Be Combined To Be Utilised By One Occupier Or Two Separate Occupiers. Office 1 & 2 Share An Entry Door Off Cranbrook Street. Each Suite Benefits From The Following Specification:

- Access Control Entry
- Led Lighting
- Comfort Cooling & Heating
- Carpets Throughout
- Perimeter Trunking
- Designated Kitchenette
- Designated Wc's

Externally Office 2 Will Benefit From A Decking Area As Well As 2 Car Parking Spaces.
Innes England
Innes England View all properties

Property ID: 90585

Office To Let, Nottingham
£625 / month
£7,500 pa

9 Cranbrook Street, Nottingham, NG1 1ER

Office · Available · 320 - 1,020 sq ft

Send Enquiry
Innes England
Innes England View all properties

Make an Enquiry

Boxpod will only use your details to send an enquiry to the advertiser and prompt a response. By clicking Send Enquiry, you agree to Boxpod's Privacy Policy.

Make an Enquiry

Innes England
Innes England

Boxpod will only use your details to send an enquiry to the advertiser and prompt a response. By clicking Send Enquiry, you agree to Boxpod's Privacy Policy.

Call