Office To Let Ripley
PROPERTY ID: 75998
PROPERTY TYPE
Office
STATUS
Available
SIZE
311 sq.ft
Key Features
Property Details
Description
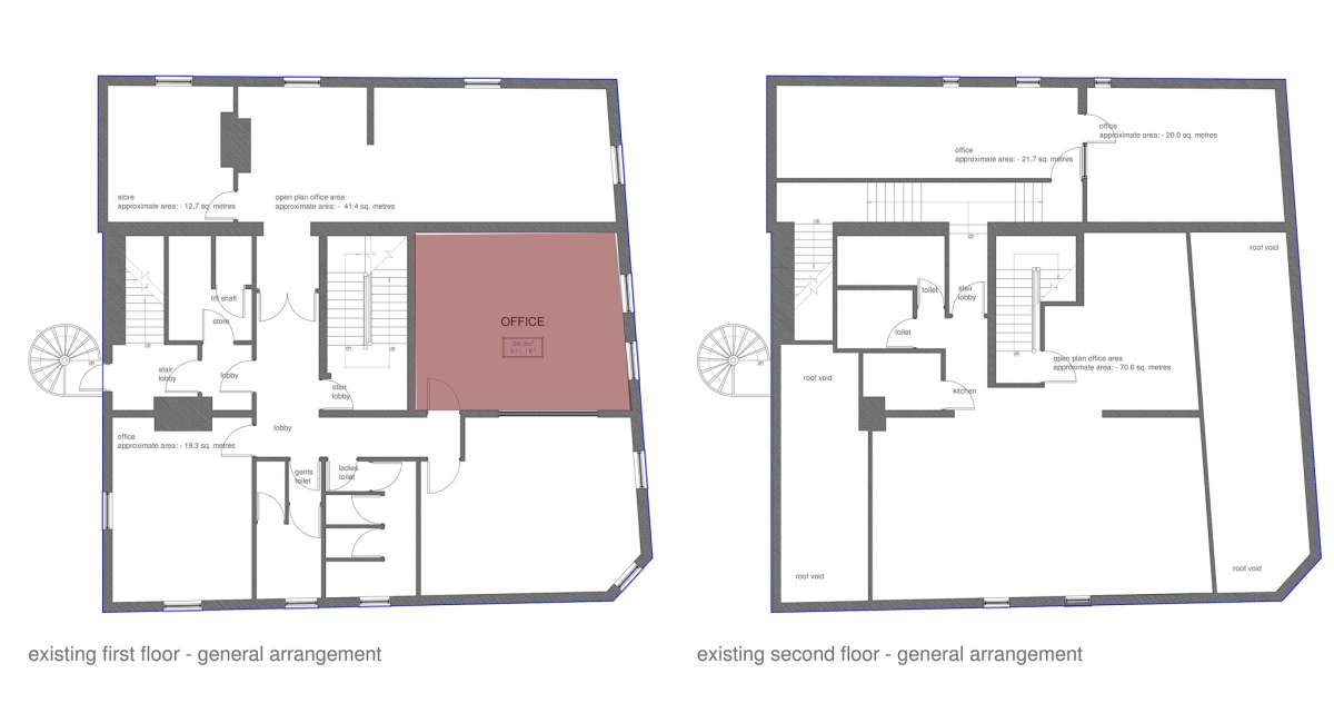
Easy In Easy Out. Bills Included. Office With Parking, Central Heating And Led Lights. Situated On The First Floor With Shared Kitchen And Wc Facilities. Interconnecting Office 107 Also Available If More Space Required.
Externally There Is A Car Park And Single Designated Space.
Viewing
Please Contact Us Or Visit The Omeeto Website For Full Details And A Virtual Tour. Physical Viewings With Proceedable Parties Can Be Arranged On Request By Contacting Our Commercial Property Agents. Omeeto Do Not Take Any Responsibility For Any Loss Or Injury Caused Whilst Carrying Out A Site Visit.
Vat
All Figures Are Quoted Exclusive Of Vat, We Are Advised The Property Is Registered For Vat Which Is Applicable At The Prevailing Rate.
Epc
D(92)















































.jpg)


































.jpg)

























