Industrial Unit For Sale Ivybridge
PROPERTY ID: 147355
PROPERTY TYPE
Industrial Unit
STATUS
Under Offer
SIZE
1,808 sq.ft
Key Features
Property Details
The property is located on the popular Lee Mill Industrial Estate which has easy access to the A38. Cadleigh Close is accessed from East Way which is one of the main trunk roads on the estate.
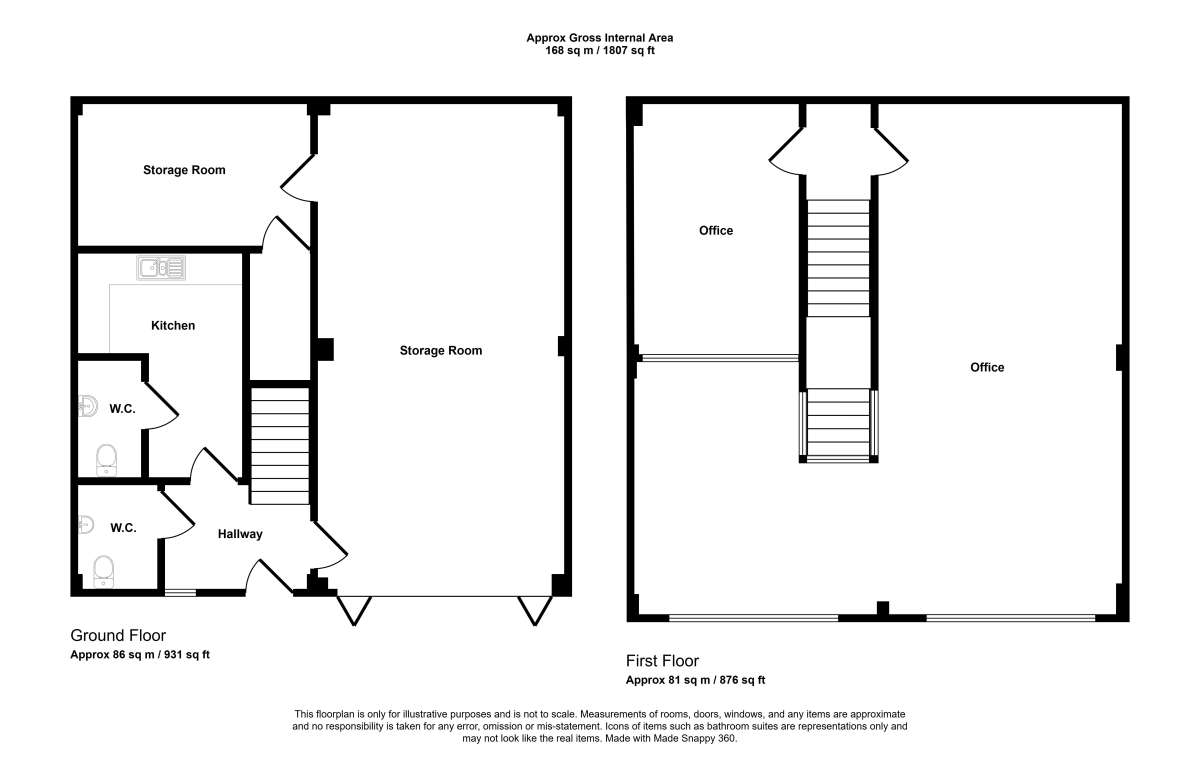
The Property Comprises Of An Industrial Unit With A Main Warehouse Area That Has Concertina Shutter Door Access. There Is An Additional Storage Room To The Rear Along With Toilet And Kitchen Facilities. There Is A Full First Floor To The Property Which Provides Good Quality Office Space Which Is Mainly Open Plan, But With One Partitioned Office Area. The Office Area Benefits From Air Conditioning And Led Lighting.
There Are 3 Allocated Parking Spaces Opposite The Unit.
Location
The Property Is Located On The Popular Lee Mill Industrial Estate Which Has Easy Access To The A38. Cadleigh Close Is Accessed From East Way Which Is One Of The Main Trunk Roads On The Estate.
Accommodation
All Areas Are Approximate And Measured In Accordance With The Rics Property Measurement (2nd Edition) On A Gross Internal Basis.
Ground Floor - 86.54 Sq M (931 Sq Ft)
First Floor - 81.39 Sq M (876 Sq Ft)
Total - 167.9 Sq M (1,808 Sq Ft)
Rent / Price
£235,000
Service Charge
A Service Charge Is Levied For The Upkeep And Maintenance Of The Road. Please Enquire For Further Information.
Business Rates
From The Valuation Office Agency Website (www.voa.gov.uk) We Understand That The Current Rateable Value Is £12,250, Therefore Making The Approximate Rates Payable £6,113 Per Annum For 2025/26.
Occupiers May Be Eligible For Small Business Rates Relief If This Is The Only Property They Occupy And/or Any Other Properties They Occupy Have A Rateable Value Of Less Than £2,900 Each. Qualifying Ratepayers Will Pay No Rates On Properties With Rateable Values Up To £12,000 With A Tapered Relief Of Between 100% And 0% For Properties With Rateable Values Between £12,001 And £15,000.
Interested Parties Are Advised To Confirm The Rating Liability With South Hams Council.
Services
We Understand That Mains Electricity, Water And Drainage Are Connected To The Property However These Services Have Not Been Tested By The Agents. Interested Parties Should Make Their Own Enquiries.
Epc
D (97)
Legal Fees
Each Party To Be Responsible For Their Own Legal Fees In Relation To This Transaction.
Vat
We Are Advised That The Property Has Not Been Elected For Vat And Will Not Therefore Be Payable On The Purchase Price.













































































































