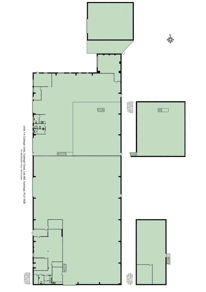
Industrial Unit To Let Ivybridge
PROPERTY ID: 151289
PROPERTY TYPE
Industrial Unit
STATUS
Available
SIZE
16,513 sq.ft
Key Features
Property Details
Lee Mill Industrial Estate, Situated Near Ivybridge, Is Generally Regarded As A Leading Industrial Estate In The South Hams. Plymouth Is Located 10 Miles To The West & Exeter 30 Miles To The East, With Excellent Road Access Via The A38. <br/><br/>the Warehouse Has A Min.eaves Height Of 5.22m (7.83m To Underside Of Apex) Giving Excellent Height For Modern Storage & Distribution Users. The Unit Is Split Internally But Could Be Opened If Required. Access Is Via 3 Sectional Goods Loading Doors Which Open Directly To Delivery Yard. External Dock Leveller Which Unloads Into Roller Shutter To Eastern Gable Wall. Warehouse 1&2 Offers Industrial Space With Office & Is Currently Fitted With A Storage Mezzanine To One Side, Approx.2,259sq.ft / 210sq.m. Warehouse 3 Benefits From A Warehouse With Modern Office Currently Designed As Open Plan Space With Managers Office, Staff Welfare, Wcs, With Mezzanine Over The Office. There Is A Further Detached Workshop Suitable For A Variety Of Uses













































































































